Generator Engine Control Wiring Diagram 34+ Images Result
Generator Engine Control Wiring Diagram. You will be in a position to know precisely if the tasks needs to be finished, that makes it much easier for you to correctly control your time and efforts. This is images about sdmo generator parts diagram posted by jeremy.
Inverter portable generator controller indoor furnishing welding system. N1 n2 23 if it is the included wiring harness the wires should have their numbers stamped on the jacketing and a sticker should designate the proper screw to mount it to in both the ats and the generator housing. Dca45ssiu2 generator and engine wiring diagram.
proper chopper wiring diagram chilled water pump wiring diagram for jeep cj5 alternator wiring 120 volt ac wiring diagram
Stamford Generator Wiring Diagram Pdf
You will be in a position to know precisely if the tasks needs to be finished, that makes it much easier for you to correctly control your time and efforts. N1 n2 23 if it is the included wiring harness the wires should have their numbers stamped on the jacketing and a sticker should designate the proper screw to mount it to in both the ats and the generator housing. Cooling system configurations each generator set manufacturer offers different options for design of the cooling system. Crank the engine with dc power applied to the governor system.

Source: faceitsalon.com
Dca45usi w/ egs/key engine wiring diagram. Furthermore, wiring diagram gives you enough time frame in which the tasks are for being finished. The generator time and exercise time are in military time so. It reveals the components of the circuit as streamlined forms, and the power and. Dca70ssiu generator and engine wiring.

Source: pinterest.com
Dca70ssiu generator and engine wiring. Dca45ssiu3 generator and engine wiring diagram. Sincro er2cxh use and maintenance manual. Refer to controller identification for controller type identification, if necessary. The above illustrated diesel generator control panel wiring diagram is the typical connection wiring diagram of the bek3 automatic mains failure controller.

Source: wholefoodsonabudget.com
45 kw generac generator & transfer switch natural gas hours we ship new listinggenerac amp single load manual transfer switch new generac power management. This is images about sdmo generator parts diagram posted by jeremy. Each component should be set and connected with other parts in specific manner. Generator set with telys control panel. The above illustrated diesel generator control.

Source: pinterest.com
Portable generator sincro r80 series use and maintenance manual. Type on the wiring diagrams reference chart to determine the wiring diagram numbers for your unit. Dca70ssiu generator and engine wiring. The ecc326 control is factory set to operate at approximately 60 hz generator frequency. For professional advice on generator set power.

Source: ricardolevinsmorales.com
Furthermore, wiring diagram gives you enough time frame in which the tasks are for being finished. Inverter portable generator controller indoor furnishing welding system. Document sices document sices generator control panel user manual, wiring diagram guideline tttt global would like to show you sices generator control panel manual. The governor system should then control the engine. Briggs and stratton power.

Source: wiringall.com
Crank the engine with dc power applied to the governor system. Each component should be set and connected with other parts in specific manner. Hz generator set spec no. Generac generator control wiring diagram. 1.25 connector arrangement (wiring view) 32 1 w1 v1 u1 u2 v2 cn1 cn2 b4 b.

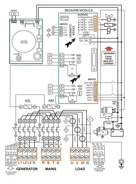
Source: bernini-design.com
Follow the wiring diagram supplied by the manufacturer. Generator ignition switch wiring diagram.predator motor wiring diagram diagrams library honda gx630 engine best help with ignition switch predator 22hp lawnsite nutone clock door chime suzuki ts 90 marine kill 1 kenmo lp de u2022 2002 polaris 500 ho baja 50 data 420cc install toyskids. This is images about sdmo generator parts.

Source: nomaallim.com
Onan engine wiring diagram all onan generator wiring diagram | free wiring diagram collection of onan generator wiring diagram. Each component should be set and connected with other parts in specific manner. 8 mm2 no mark wire size: 8 cooling sstems cooling system basics 1 0 cooling system basics in its simplest form an internal combustion engine is an energy.

Source: wholefoodsonabudget.com
Onan engine wiring diagram all onan generator wiring diagram | free wiring diagram collection of onan generator wiring diagram. Inverter portable generator controller indoor furnishing welding system. Joined mar 12 2011 1828 posts. The actuator will energize (within 1.5v dc of battery voltage) and force the fuel control to its maximum fuel position until the engine starts. Hz generator set.

Source: bernini-design.com
N1 n2 23 if it is the included wiring harness the wires should have their numbers stamped on the jacketing and a sticker should designate the proper screw to mount it to in both the ats and the generator housing. Dca60ssai generator and engine wiring diagram. Wiring diagram 01 onan generator ~ here you are at our site, this is.

Source: pinterest.com
Connecting the current transformers after the mains and generator changeover will allow you to read and monitor the current when the load is connected to the power utility. Generator set with telys control panel. Small diesel generators wiring diagrams. Hz generator set spec no. 46512, 46565, 41535, and 41552 wiring diagram.

Source: graphicequalizersrightnow.blogspot.com
Eps (engine power source) eps 20kw diesel wiring diagram. 8 mm2 no mark wire size: Generac generator control wiring diagram. Generator ignition switch wiring diagram.predator motor wiring diagram diagrams library honda gx630 engine best help with ignition switch predator 22hp lawnsite nutone clock door chime suzuki ts 90 marine kill 1 kenmo lp de u2022 2002 polaris 500 ho baja.

Source: wiringdiagramall.blogspot.com
14 mm2 mm2 b l br g gr v p black blue brown green gray violet pink r w y lb lg o red white yellow light blue light green orange wire size code/wire color 5.5: Hz generator set spec no. Each component should be set and connected with other parts in specific manner. The generator time and exercise time.

Source: wholefoodsonabudget.com
Hz generator set spec no. Document sices document sices generator control panel user manual, wiring diagram guideline tttt global would like to show you sices generator control panel manual. Cooling system configurations each generator set manufacturer offers different options for design of the cooling system. Eps 2120 diesel generator wiring diagram. 45 kw generac generator & transfer switch natural gas.

Source: instructables.com
The governor system should then control the engine. A wiring diagram is a simplified traditional pictorial depiction of an electric circuit. 14 mm2 mm2 b l br g gr v p black blue brown green gray violet pink r w y lb lg o red white yellow light blue light green orange wire size code/wire color 5.5: Follow the wiring.

Source: wholefoodsonabudget.com
Onan engine wiring diagram all chapter 1 : Hz generator set spec no. Type on the wiring diagrams reference chart to determine the wiring diagram numbers for your unit. 45 kw generac generator & transfer switch natural gas hours we ship new listinggenerac amp single load manual transfer switch new generac power management. Module via a wiring harness, a terminal.

Source: wiringall.com
Dca60ssi2 generator and engine wiring diagram. Eps 2120 diesel generator wiring diagram. Dca70ssiu generator and engine wiring. The below electric wiring diagrams or electric principle diagrams are widely compatible with any of the kama and kipor kde 2000, kde3300, kde5000, kde5500, kde6000 and kde6500 generators and any single cylinder engine diesel generator of any make and model. 46512, 46565, 41535,.

Source: pinterest.com
Sincro er2cxh use and maintenance manual. The control toggle switch enables the user to switch the generator from off to the manual or auto position. The ecc326 control is factory set to operate at approximately 60 hz generator frequency. Document sices document sices generator control panel user manual, wiring diagram guideline tttt global would like to show you sices generator.

Source: ricardolevinsmorales.com
Dca60ssi2 generator and engine wiring diagram. Onan engine wiring diagram all onan generator wiring diagram | free wiring diagram collection of onan generator wiring diagram. 1.25 connector arrangement (wiring view) 32 1 w1 v1 u1 u2 v2 cn1 cn2 b4 b. Connecting the current transformers after the mains and generator changeover will allow you to read and monitor the current.

Source: isavetractors.com
1.25 connector arrangement (wiring view) 32 1 w1 v1 u1 u2 v2 cn1 cn2 b4 b. Briggs and stratton power products hpp1718 1 bsw200dc parts diagram for alternator outlet panel from jackssmallengines.com. Hz generator set spec no. Cooling system configurations each generator set manufacturer offers different options for design of the cooling system. Sincro er2cxh use and maintenance manual.